Dom, ktorý rastie s Vami

Vo svojom základnom variante s plochou 65 až 82 m2 ponúka montovaný dom Primo dostatok miesta na bývanie predovšetkým jednotlivcom, párom, ale aj menším rodinám. Flexibilný koncept umožňuje prístavbu dodatočných priestorov, obytných traktov, zimných záhrad a prístreškov pre vozidlá. Rodina rastie – dom rastie s Vami. 



Primo je príma

Rodina rastie - dom rastie s rodinou. 
Rôzne prístavby sa môžu uskutočniť aj dodatočne a to veľmi ľahko. Potrebujete novú obytnú plochu alebo dodatočný priestor pre doopatrovanie rodičov, prípadne kanceláriu alebo prístrešok pre auto? Žiadny problém! Prístavby sú pri dome Primo plánované už od začiatku – s domom Primo „zostanete pohyblivý“. 
Dom pre všetkých, ktorí chcú ostať flexibilní, nezávisle od toho, čo život prinesie.

Haus Primo

Primo je presne taký veľký, ako potrebuje, aby ste sa cítili v pohode.

WOLF Haus - Fertighaus Primo

Primo

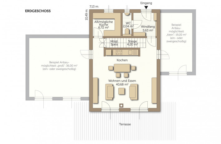
Fertighaus Primo - Grundriss Erdgeschoss

Pôdorys prízemia

WOLF Haus - Fertighaus Primo Innenansicht

Primo interiér

WOLF Haus - Fertighaus Primo

Primo

Fertighaus Primo - Grundriss Obergeschoss

Pôdorys poschodia

WOLF Haus - Fertighaus Primo Musterhaus

Montovaný dom Primo 

WOLF Haus - Fertighaus Primo Preis